You have been hired to design a new kind of lifestyle
cafe experience.This cafe is sponsored by an independent lifestyle magazine, and philosophically is aligned with the notion that culturally we are experiencing an internet fatigue of sorts. Our social media feeds are increasingly overtaken with unread blog posts, disposable information, and a general digital overload. A niche market and culture has emerged from this – an object with shelf life, a substantial journal that smells like paper and connects with you on an emotional and nostalgic level. These expensive new “magazines” rich with content are to be savoured, referenced and enjoyed while slowly sipping an artisanal treat.
Magazine options are Gourmand, Suitcase, Cereal, Wherever, or Gather
YOU ARE TO REDESIGN PART OF “BATES MOTEL” IN SILVERLAKE TO FIT YOUR CAFE, AND WILL CREATE A MENU TO GO ALONG WITH YOUR CAFE. YOU MUST INCORPORATE THE EXISTING BILLBOARD INTO THE DESIGN AND IT MUST ACT AS A COMMENTARY ON THE LIFESTYLE OF YOUR MAGAZINE, NOT AN ADVERTISEMENT FOT THE CAFE ITSELF.
—Environmental Design I, ArtCenter College of Design
Cereal was chosen for its simplicity; it is light & sophisticated and really promotes the slow moments the design brief called for. Herbal drinks: gin with rosemary, lavender lemonade, etc. served as a basis for the menu and branding. A non-alcoholic, tea-based cafe was ultimately chosen in order to include a wider demographic.
To honor the original building, the existing staircase became a highlight. A gabled roof and thin-framed windows on the entire front facade are reminiscent of an arboretum or greenhouse. Natural elements in the interior and decor emphasized the connection to plant-based elements in the drinks, promoting an overall sense of nature.
The billboard comments on the importance of slowing down, so not using actual textual commentary acts commentary in itself – vines grow up the billboard and around its frame, hinting that getting in touch with nature helps us slow down. It serves as a break from ads constantly being thrown at us and reminds us of nature’s will to grow, even in unlikely situations.

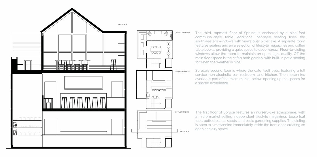
Spruce is a tea-based cafe serving aromatic, herbal and floral concoctions. Spruce aligns with the light and airy quality of lifestyle magazines like Cereal. Getting back in touch with nature-based elements in our food and environment helps us to step away from our busy world and invites us to enjoy a slower pace. Located just outside the heart of Silverlake, Spruce attracts a hip yet sophisticated audience of millenials and nature lovers.
About Cereal: Cereal is a biannual, travel & style magazine based in the United Kingdom. Each issue focuses on a select number of destinations, alongside engaging interviews and stories on unique design, art, and fashion. Cereal is sophisticated glimpse at contemporary culture, curated for millenials that understand culture, style, and adventure happen outside of our devices in the physical world.
The model, at 1/4″ = 1′ :




Inside the model:
Renders (using Rhino 3D with V-Ray renderer) :

Layout:

All images & designs of Spruce copyright Emily Müller, ©2018. All other images copyright their respectful owners.